140㎡现代简约丨简洁大气,幸福生活
2020/10/31 0:00:00⊙业主需求丨Owner demand
本案业主家庭成员为三口之家,女业主是小学老师,宝宝刚刚出生,后面老人偶尔会过来居住,帮忙照看下孩子。
男主是在事业单位工作,偶尔会在家办公,女主喜欢学习看书,她希望这个房子能够给孩子提供一个健康的,快乐的成长坏境。
⊙设计方案丨devise a scheme

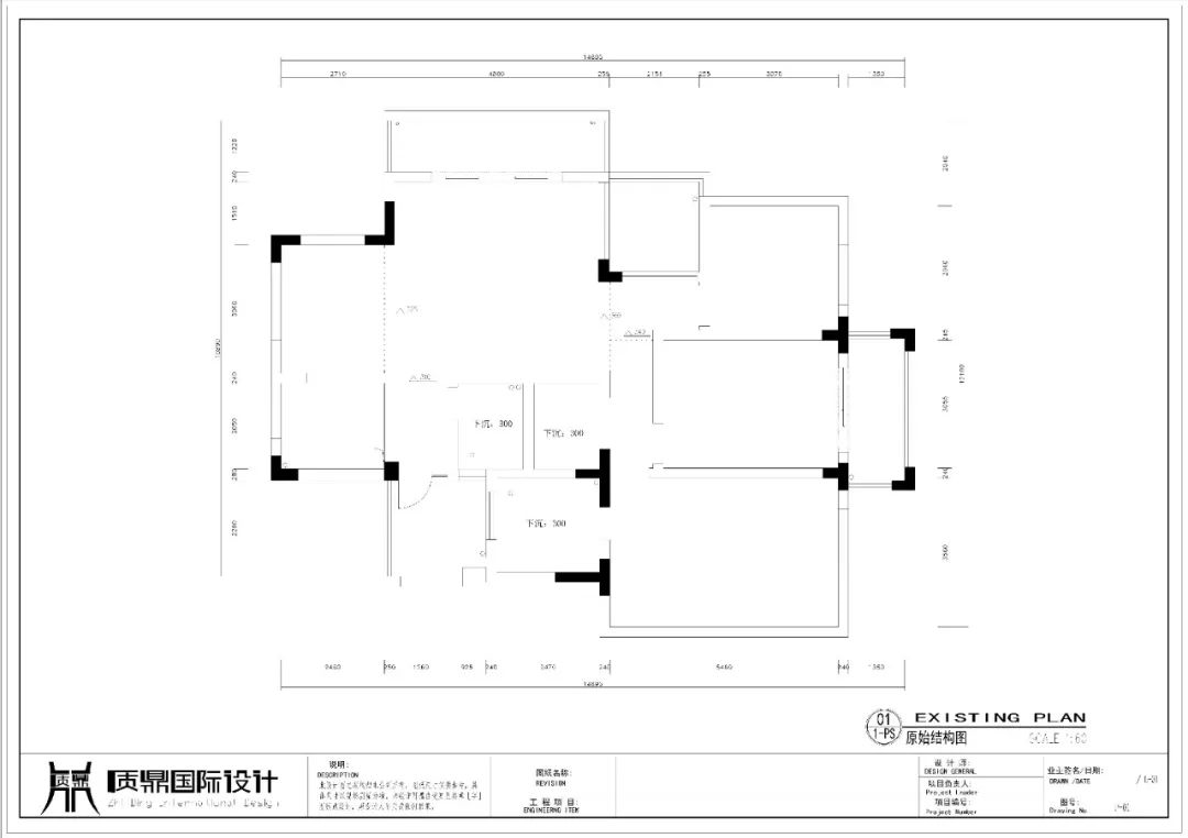
(原始平面图)

(改造后平面图)
★户型劣势: 客餐厅布局不合理,沙发背景不好做,客厅的阳台采光不足,容易浪费,两个公共卫生间,业主家人口不多,不实用。
☆户型优势:户型方正,整个空间还算通透,主卧有自己的卫生间,舒适感和隐私得到了很好的保障。因为是一梯两户,入户还有一个很不错的门厅。
√户型改造:
客厅阳台打掉,阳台纳入客厅,扩大客厅面积,沙发靠背做吧台。
厨房两边墙体打掉,从实用性和美观性上考虑做对称酒柜。
两个公卫改做一个公卫,做干湿分区。
赠送的小书房面积,进门改到客厅,增加通透性。
▼客厅 living room
整体风格为现代简约风,电视背景采用爵士白人造大理石做造型,简约大气, 其余墙面用浅灰色墙布搭配,吧台的材质与电视背景相呼应,后面一整面的装饰酒柜,给了男女主人独立的休闲时光。

吊顶做无主灯设计,回光增加整理室内采光,选用皮质沙发,干净利落,旁边的单人沙发跳色,增加了整个空间的轻松氛围,色彩和材质的选择都突出了简约又大气的格调。

▼餐厅 dining room
对称的酒柜既有装饰性,又有实用价值,时尚的六人位餐桌,面与腿的黑白经典配色,搭配深褐色的窗帘,营造出一个比较轻松的用餐环境。

▼主卧 Master BedRoom
整体色彩为奶白色,床头背景采用深咖色背景,突出重点,床品的选择也是花了心思的,搭配黑色床靠背,体现出男主人的干练,衣柜的柜体采用浅胡桃木面板,为纯白烤漆面板,整个环境舒适而又自然。

▼老人房 Senior Citizen's Room
没有太多造作的修饰与约束,老人需要宁静与舒缓的氛围,以奶咖色作为整个房间的基调。床头柜上要装台灯,方便老人夜晚起来开灯。

▼儿童房 Children's room
在色彩上的运用大胆一些,因为是男孩,主色调为蓝色,浅色的床品搭配充满童趣的主灯,处处是惊喜。以飞机座位吊灯晚间睡觉的时候,会不会有种错觉自己遨游在宇宙之中呢?

▼公共卫生间 Public Washroom
干湿分离,更好地解决了过多的家庭人口洗漱排队的问题,两个干区洗手盆,超大的镜面柜,满足了女主人平时化妆和放化妆品的需求,对面放洗衣机和烘干机。


▼主人卫生间 master bathroom
共男女主人两人使用,没有做淋浴,做了浴缸,结束了一天的工作之后,回家可以舒服的泡个澡,因为空间比较大,浴缸对面做了一组壁龛,可以收纳洗漱用品和浴巾等。

