这是一套建面140m²的三室两厅,业主是一位单身男性,目前是一个人住;希望保留原始的布局,同时要优化,让使用更合理、舒适;整体风格定为现代极简无主灯,完工效果看起来宽敞大气,白色为主让空间看起来明亮通透,木地板的搭配增添了空间的温馨感~

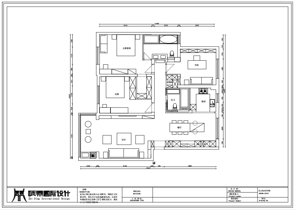
原户型比较方正,部分墙体设计不合理,我们需要将其完善,让空间更合理,保证空间的秘密性,同时拥有充足的收纳空间。

整体在原户型的基础上做了些微的改动,业主对主卫的使用率较高,将主卫的空间扩大,功能也更齐全。将原次卧门的位置移动到另一边,再借助次卧的位置为主卧增加了一个衣帽间。
原过道比较宽敞,书房和客卫的墙体往外扩了,增添了一个储物间。客卫一分为二,增加了厨房的位置,让客餐厅宽敞又通透。

进门即是客餐厅空间,入户门厅处打造了个玄关柜,方便收纳鞋子包包等出门必备物品。

白色的主色调搭配了浅木色的地板,地板人字形铺贴使空间看起来宽敞,且不失温馨感。

阳台与客厅一体化,开阔空间,让室内拥有充足的自然光。

当早晨的第一缕阳光照进屋内,整个家里突然变得生机有活力。

背景墙没有多余的装饰,灯带和射灯的效果带来时尚与温馨感。



客餐厅在同一轴线上,视野宽阔,空间通透。

餐厅区域增加了一整面的储物柜,中间一部分开放展示柜,满足了日常生活中最频繁、最实用的区域的收纳工作。

一套简易又时尚的餐桌椅,具有独特的审美。打造了清新淡雅的格调,搭配出轻松愉悦的用餐环境。

厨房做U型橱柜,充足的收纳空间与操作空间,简约的风格和色调看起来更舒适。

卧室仍然延续主体的色彩及风格,极简的搭配看起来温馨又干净。

背景墙灯带和床头灯可以二选一打开,提升氛围感;背景墙刷白,将极简发挥到淋漓尽致。

客卫干湿分离,时尚感爆棚。细条的淋浴房门框搭配在小面积的卫生间里,有拉伸视觉的效果。